Acheter
EXCLUSIVITE TERRAIN 514 m2 + CONSTRUCTION D'UNE MAISON DE 4
17600 SaujonA propos du bien
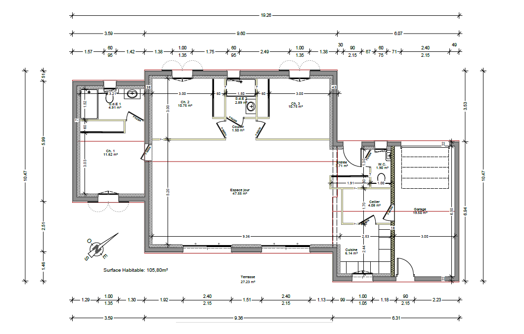
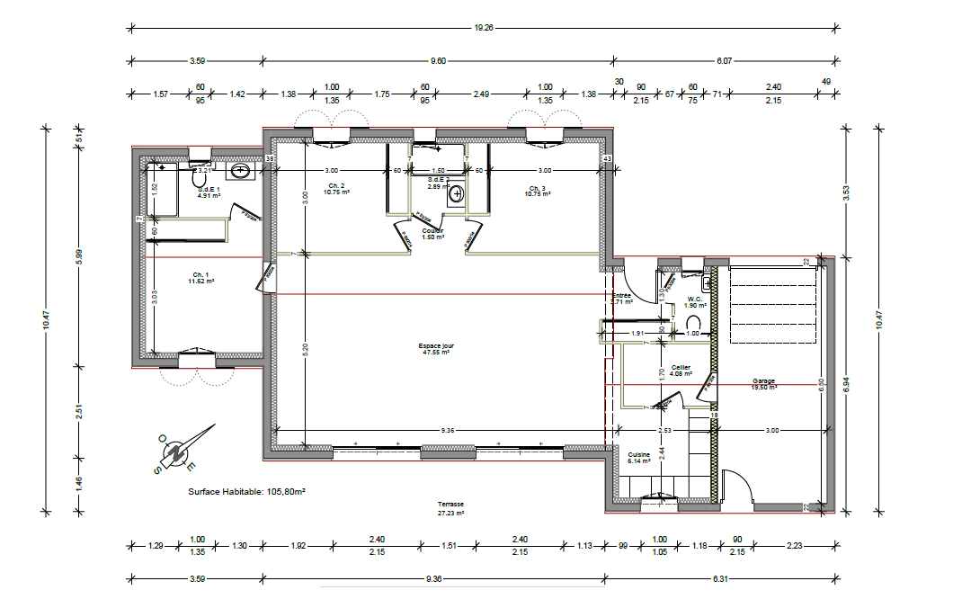
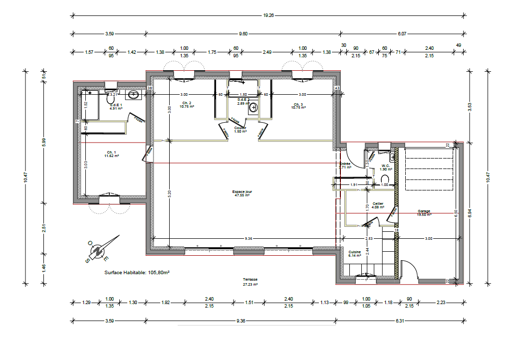
EXCLUSIVITE LE CHAY (SAUJON), terrain de 514 m² + construction d'une maison de 4 pièces 105,80 m² habitables, comprenant : entrée, séjour de 47 m² ouvrant sur jardin, cuisine, cellier, dégagement, 3 chambres dont une suite parentale, salle d'eau et wc. Chauffage au sol par pompe à chaleur. Garage attenant. Les informations sur les risques auxquels ce bien est exposé sont disponibles sur le site Géorisques : www.georisques.gouv.fr. Honoraires agence à la charge du vendeur. https://www.par-agence.fr/nos-honoraires.
VOUS ÊTES INTERESSÉ ?
Contactez-nous via notre formulaire de contact !Bilan énergétique
annuels d'énergie
Les coûts sont estimés en fonction des caractéristiques du logements et pour une utilisation standard sur 5 usages (chauffage, eau chaude sanitaire, climatisation, auxiliaires)
Entre 0€ et 0€/an
Prix moyen des énergies indexés au 1er janvier 2021 (abonnement compris)
Valeur : 0













