Acheter
Maison neuve 5 pièces Plage du Platin à pied
17420 Saint-Palais-sur-Mer549 744 €
Honoraires à la charge du vendeur
Réf. 2873
Type
maison/villa
Pièces
5
Surface
120.47
Chauffage
individuel sol
Construction
2026
Garage
OUI
Etage
Chambres
4
A propos du bien
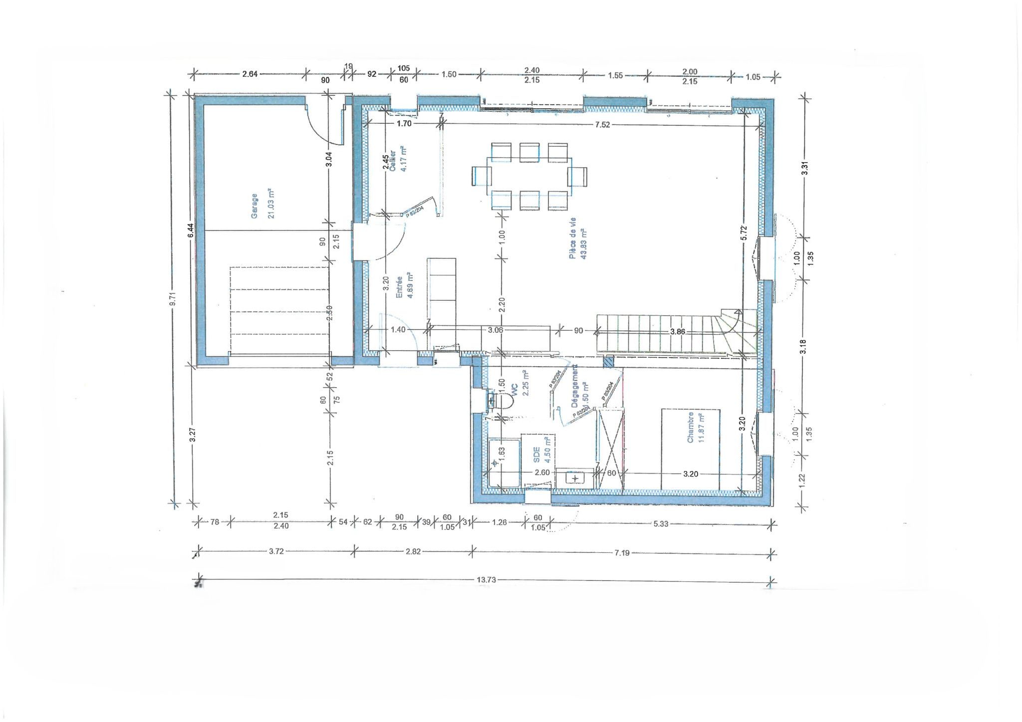
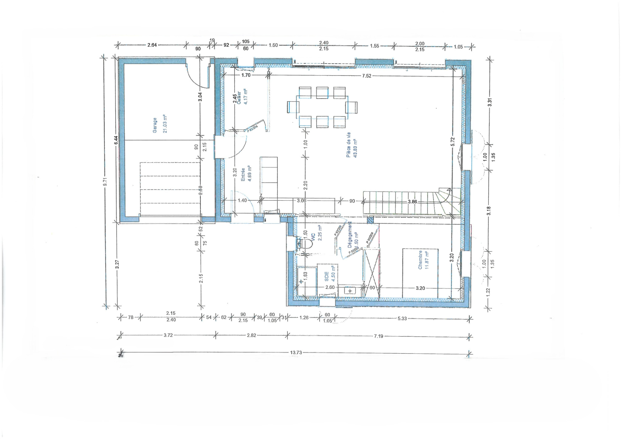
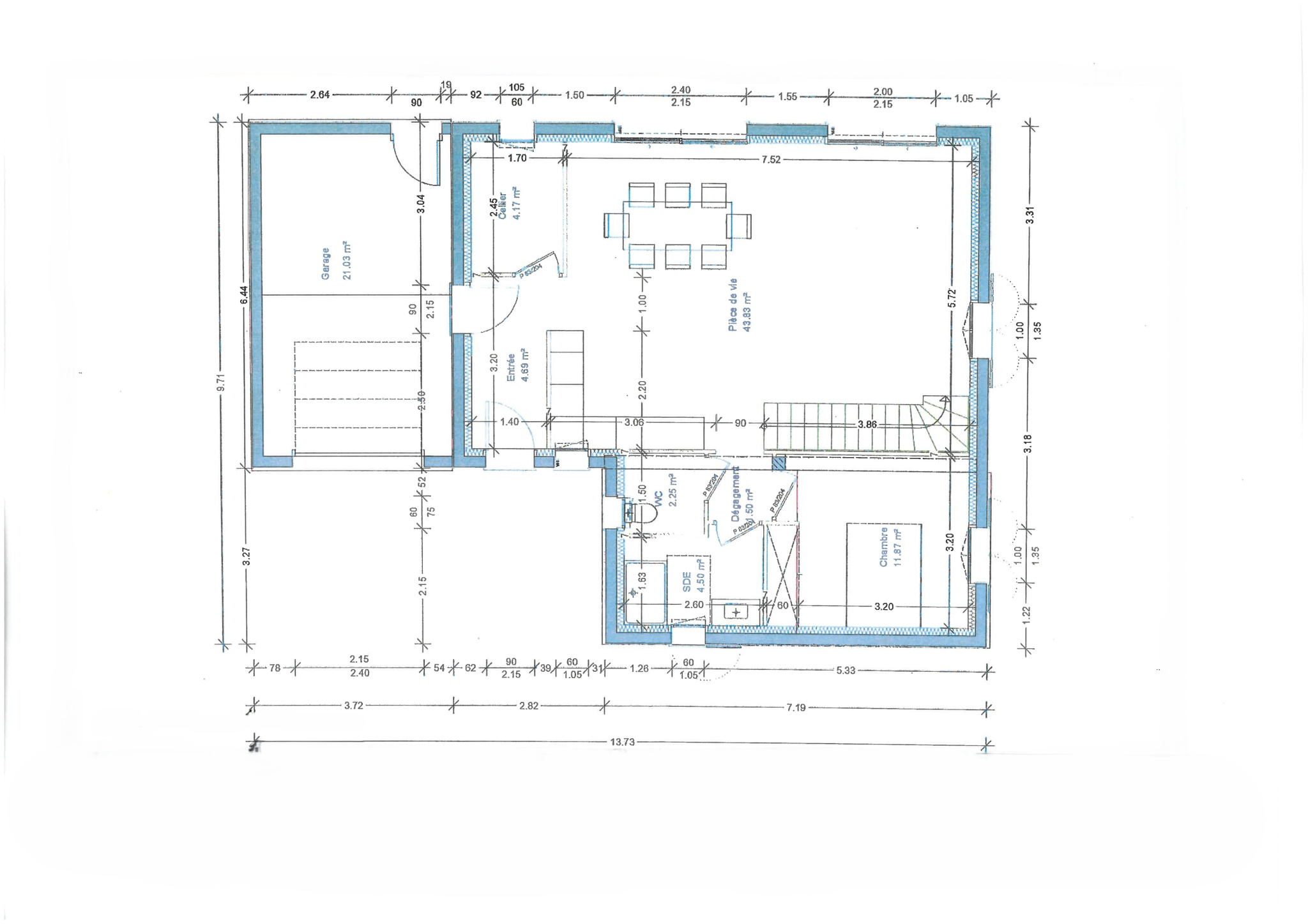
Saint-Palais-sur-Mer, à seulement 600 mètres de la Plage du Platin, cette maison neuve de 120,47 m² habitables offre un cadre de vie privilégié entre mer et nature. Édifiée sur un terrain clos de 320 m², elle séduit par ses prestations répondant aux normes RE 2020. Le rez-de-chaussée accueille une entrée ouvrant sur un lumineux séjour avec cuisine à l'américaine, largement ouvert sur le jardin grâce à deux baies vitrées. Un dégagement dessert une chambre avec placard, une salle d'eau et un WC. À l'étage, le palier distribue trois chambres avec placards, une salle d'eau et un WC. Un garage attenant de 21 m² complète l'ensemble. Chauffage au sol par pompe à chaleur. Assurance dommages ouvrage et frais de notaire réduits. Livraison prévue au premier trimestre 2027. Terrasse en option Honoraires d'agence à la charge du vendeur. En savoir plus sur nos honoraires : https://www.par-agence.fr/nos-honoraires/ Risques : www.georisques.gouv.fr.
VOUS ÊTES INTÉRESSÉ ?
Contactez-nous via notre formulaire de contact !Bilan énergétique
Diagnostic de performance énergétique
Estimation des coûts
annuels d'énergie
annuels d'énergie
Les coûts sont estimés en fonction des caractéristiques du logements et pour une utilisation standard sur 5 usages (chauffage, eau chaude sanitaire, climatisation, auxiliaires)
Entre 0€ et 0€/an
Prix moyen des énergies indexés au 1er janvier 2021 (abonnement compris)
Emission de gaz à effet de serre













